These images are used in good faith. The copyright owner may contact this website at mail@hamptonwickhistory.org.uk
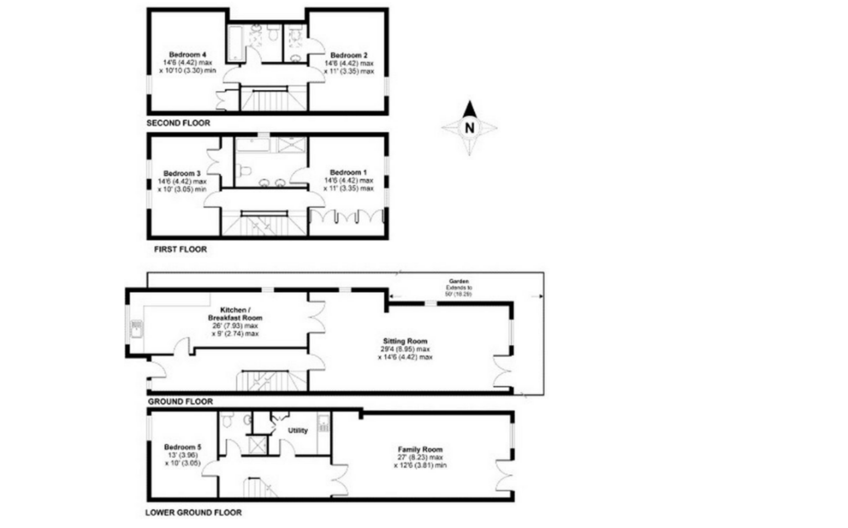
45a Vicarage Road for sale June 2013








Estate Agent Publicity Material
These images are used in good faith. The copyright owner may contact this website at mail@hamptonwickhistory.org.uk
45a Vicarage Road for sale June 2013